Patrick Airport Center
6012-6038 S. Topaz St, 6035-6045 Harrison Dr, 2700-2710 E. Patrick Lane Las Vegas, NVPROPERTY FEATURES
- MOVE-IN READY
- DOCK-HI TRUCK LOADING
- 120/208V, 3-PHASE POWER
- METAL HALIDE AND FLUORESCENT WAREHOUSE LIGHTS
- GRADE LEVEL LOADING TO SOME UNITS
- MD LIGHT INDUSTRIAL ZONING
- EVAPORATIVE COOLED WAREHOUSE
- FIRE SPRINKLERS AT .20 PER 1,500 SF
- CONCRETE TILT-UP CONSTRUCTION
CALL US TODAY
702.359.4858-
PROPERTY LOCATION Las Vegas, NV
-
BUILDING SIZE 142,451 SF
-
AVAILABLE SQ. FT. 4,738 SF
Patrick Airport Center
Adam Murray,
Leasing Manager
680 Pilot Road, Suite B-2
Las Vegas,
NV
89119
p. 702.359.4858
c. 801.410.3877
CURRENT AVAILABILITIES
| BUILDING | SUITE | Total size | Office Size | Office % | Type | Clear HT. | GL | DL | Floor plan | Photos |
|---|---|---|---|---|---|---|---|---|---|---|
| 2700 | 2700-12 | 1,938 | 528 | 27% | IND | 20 | 1 | 0 | View plan | View Photos |
COMING AVAILABLE
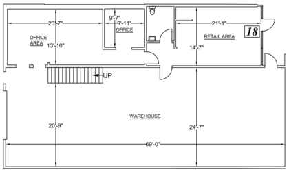
| BUILDING | SUITE | Total size | Office Size | Office % | Type | Clear HT. | GL | DL | DATE AVAILABLE | Floor plan |
|---|---|---|---|---|---|---|---|---|---|---|
| 2700 | 2700-18 | 2,800 | 1,041 | 37% | IND | 20 | 1 | 0 | N/A | View plan |