Havana 37 Business Center
3700 Havana Street Denver, COPROPERTY FEATURES
- NUMBER OF BUILDINGS: 3
- CITY/COUNTY: DENVER/DENVER
- YEAR BUILT: 1974
- ZONING: I-2
- LOADING: DOCK HIGH AND DRIVE-IN
- CLEAR HEIGHT: 14'
- SPRINKLERS: GENERAL DUTY
- PARKING: 2:1,000 SF
CALL US TODAY
303.309.3522-
PROPERTY LOCATION Denver, CO
-
BUILDING SIZE 150,532 SF
-
AVAILABLE SQ. FT. 23,951 SF
X
close
Havana 37 Business Center
Matt Keyerleber,
Leasing Agent
p. 303.309.3522
CURRENT AVAILABILITIES
| BUILDING | SUITE | Total size | Office Size | Office % | Type | Clear HT. | GL | DL | Floor plan | Photos |
|---|---|---|---|---|---|---|---|---|---|---|
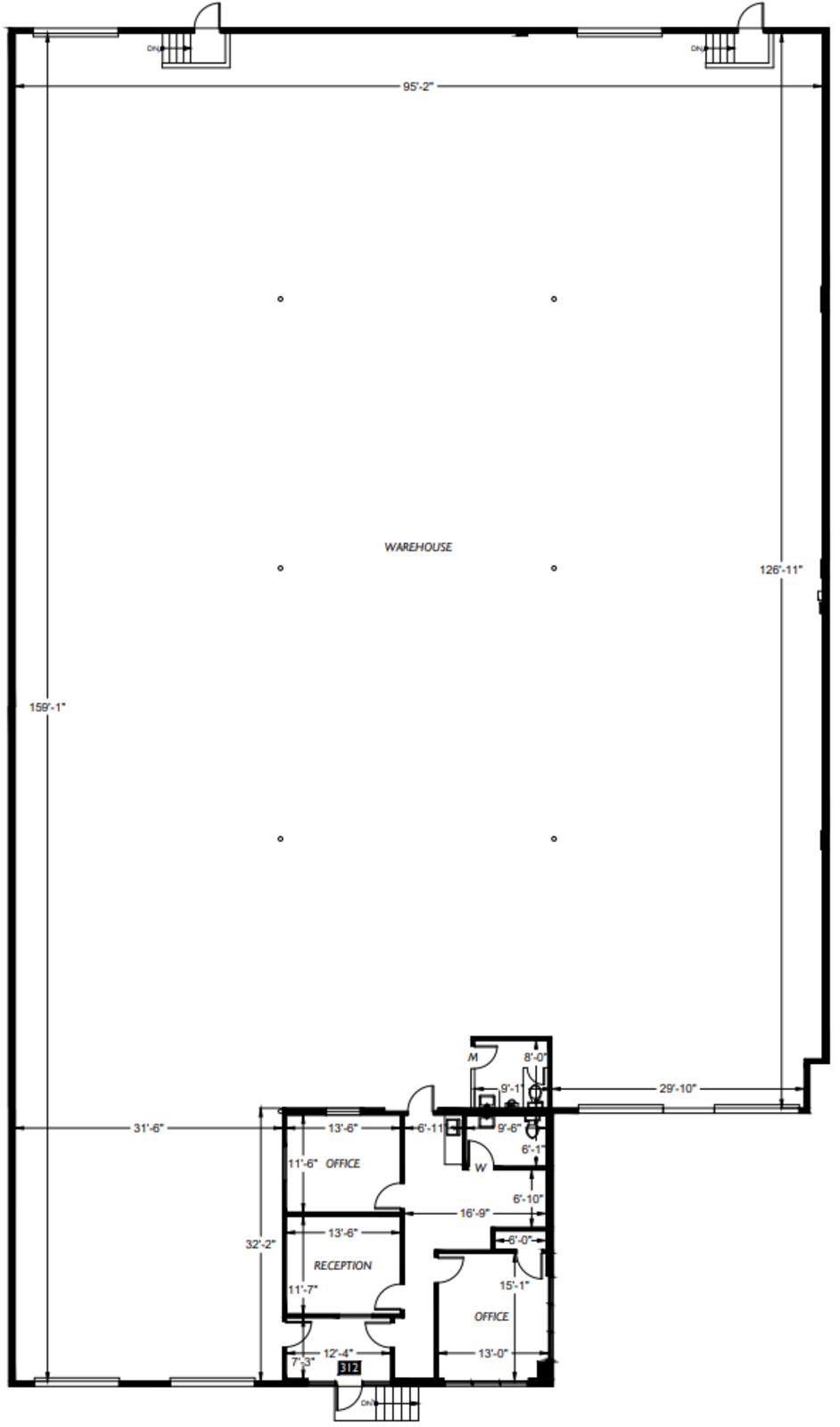
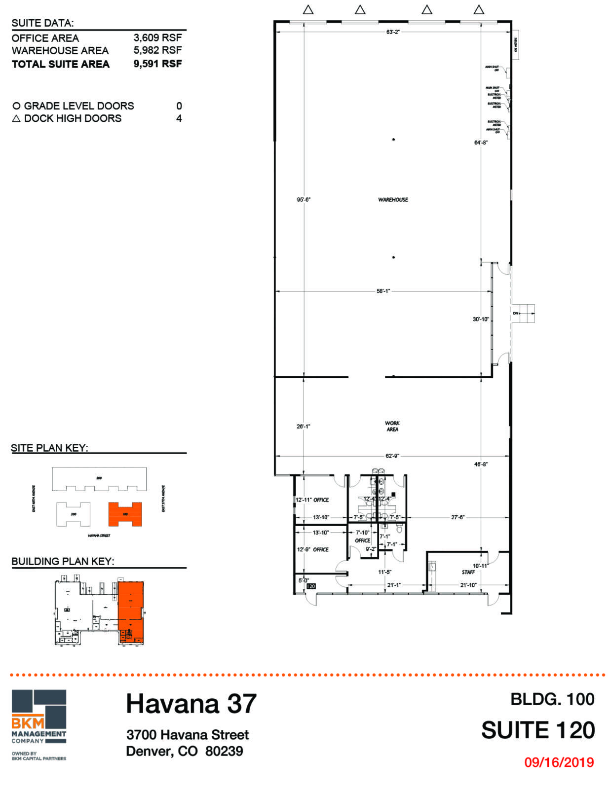
| 100 | 120 | 9,615 | 1,896 | 20% | IND | 14 | 0 | 4 | View plan | View Photos |
| 300 | 312 | 14,336 | 1,026 | 7% | IND | 18 | 0 | 4 | View plan | View Photos |
SITE PLAN
Available
Coming Available